bis zum Ende der Einreichung
Menü

Das Siedle Haus

Baujahr: 2026
Am Projekt beteiligte Unternehmen: Pichler Ingenieure, Berlin, Bollinger + Grohmann, Berlin, JBKS Lab, Wollerau, Schweiz, RECKLI GmbH, Herne, voxeljet AG, Friedberg, FC-Planung, Freiburg, Transsolar, Stuttgart, Licht Kunst Licht, Berlin, Atelier Le Balto, Berlin
Architekt: brandlhuber + hotz+ archtitekten
Ort: Furtwangen
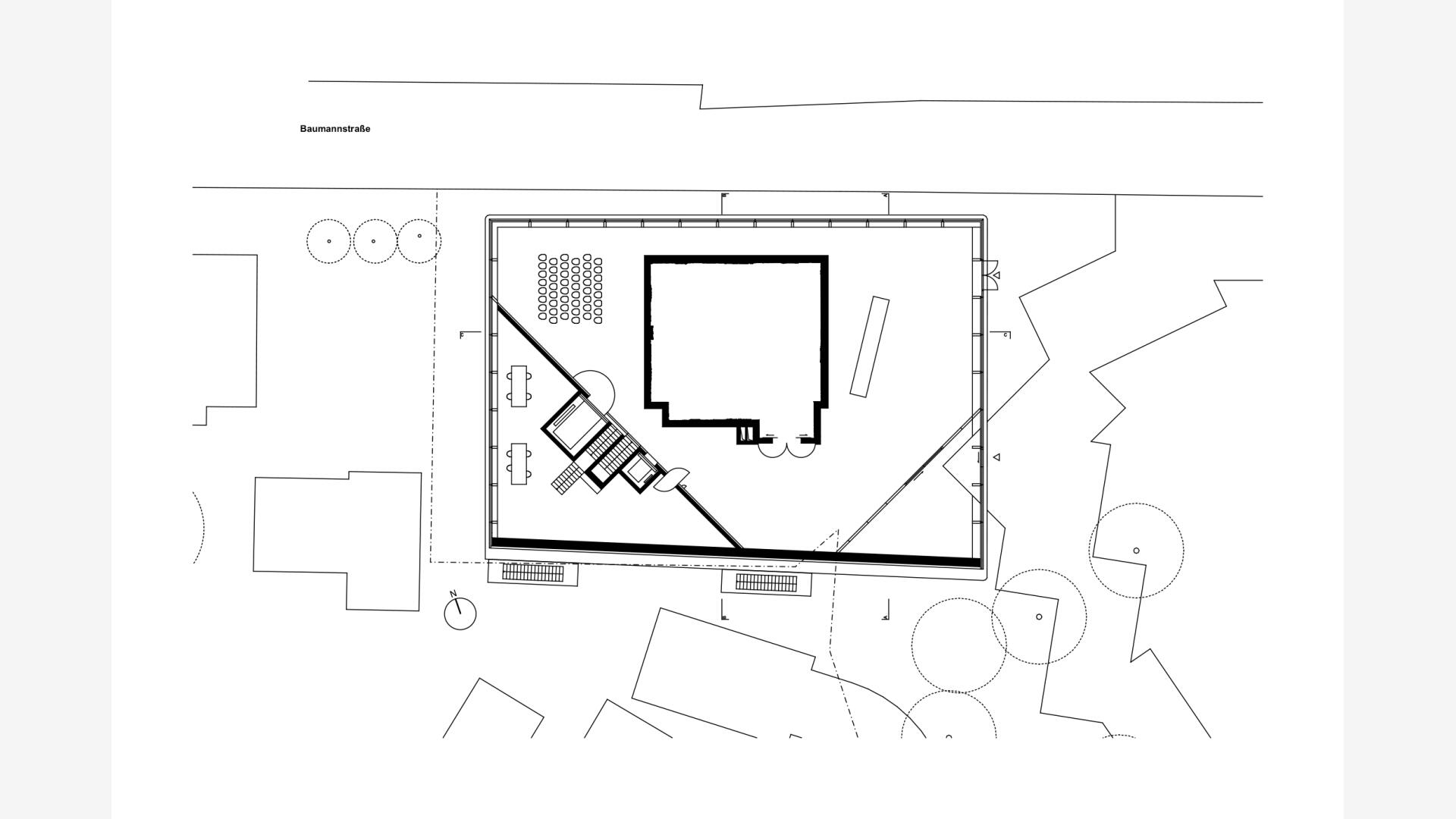
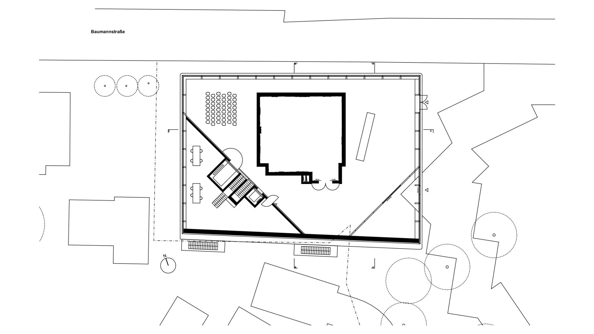
Das Haus Siedle in Furtwangen versteht das Museum als Ort der Aushandlung von Geschichte, Kunst und Gemeinschaft. Am historischen Firmensitz verbindet es Industriegeschichte, Sammlung und lokalen Kontext. Der Entwurf interpretiert regionale „Nur-Dach-Häuser“ neu. Im Zentrum steht ein „Haus im Haus“: der digitale Abdruck eines abgerissenen Wohnhauses, als Negativform räumlich erfahrbar. Geschichte wird nicht rekonstruiert, sondern eingeschrieben. Die Sammlung trifft auf einen Raum, der selbst Erinnerung trägt. Zugleich vernetzt das Gebäude Ort, Landschaft und Öffentlichkeit und macht Vergangenheit unmittelbar erfahrbar. Das Museum wird so zum sozialen Ort, der Begegnung ermöglicht und kulturelle Teilhabe im ländlichen Raum stärkt.

Zurück