bis zum Ende der Einreichung
Menü

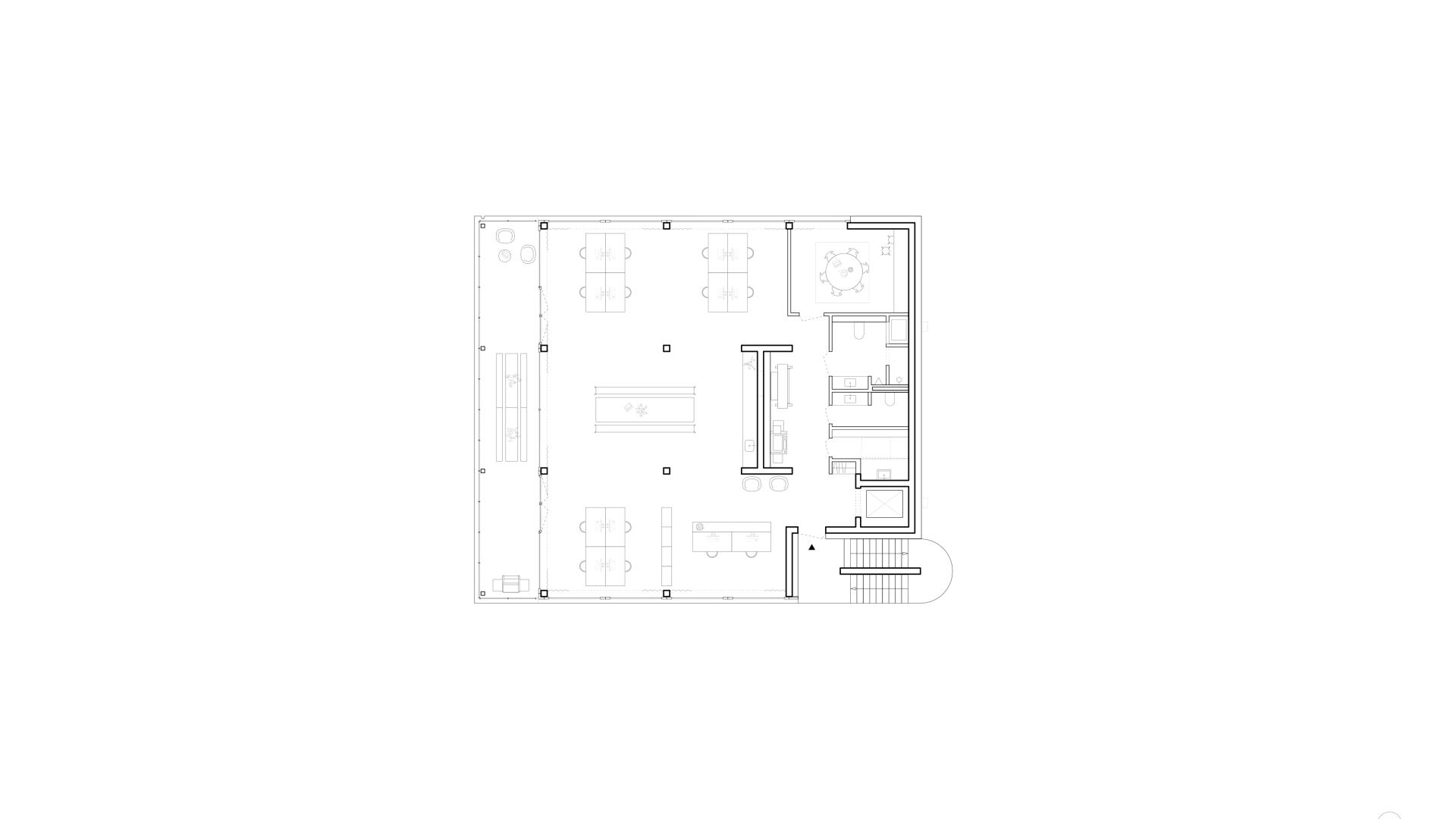
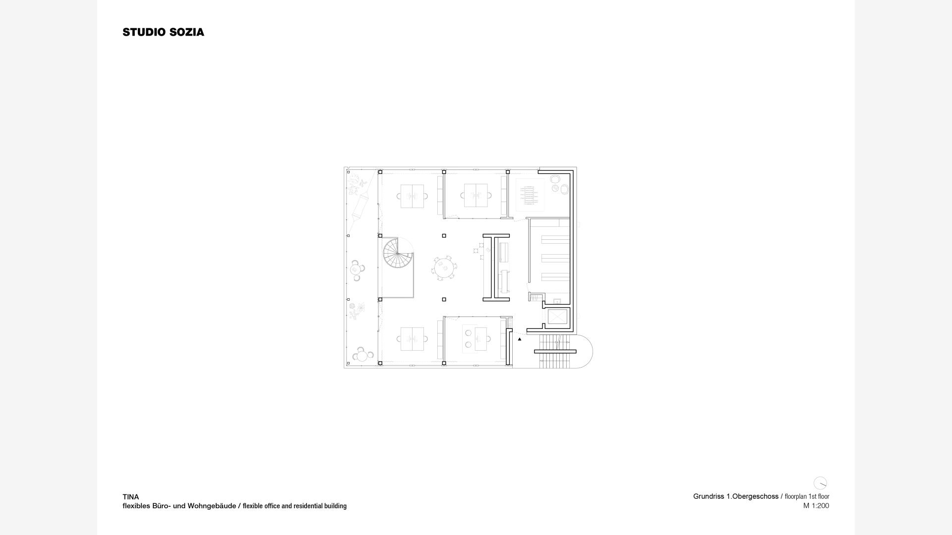
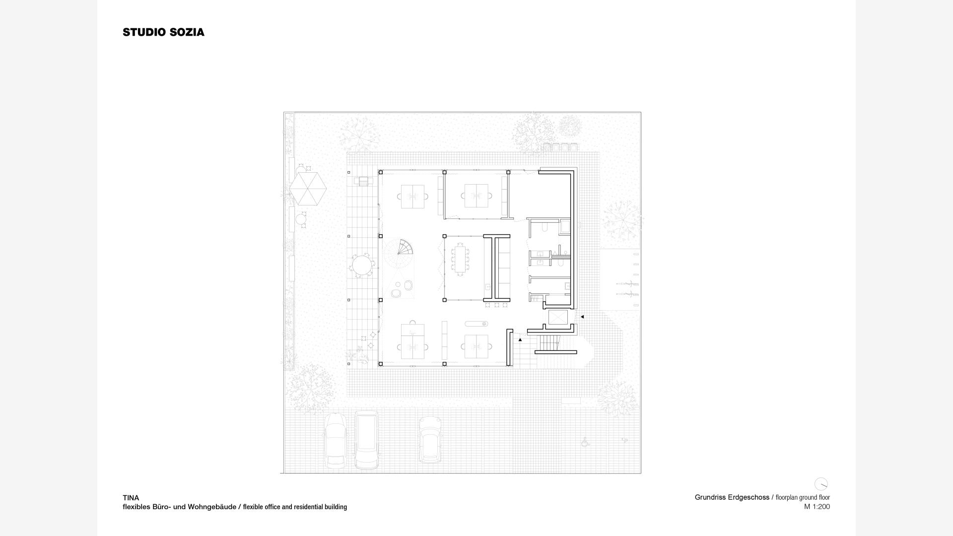
TINA flexibles Bürogebäude

Baujahr: 2022
Am Projekt beteiligte Unternehmen: Ingenieurbüro für Gebäudetechnik Uwe Häberle (HLSE), Mohnke Höss Bauingenieure (Tragwerksplanung), EnerCheck Ingenieurbüro Letsch (Bauphysik), Stahl+Weiß (Akustik), Licht an! (Lichtplanung), Norbert Holthausen (Brandschutz), Kim Fohmann (Architekturfotografie)
Architekt: STUDIO SOZIA Calavetta Häberle Architekten PartGmbB
Ort: Breisach am Rhein
Aufgrund geringer Bodenreserven und damit einhergehender stark steigender Bodenpreise im Großraum Freiburg erwarb unsere Auftraggeberin anstelle des gewünschten Mehrfamilienhaus-Grundstücks ein knapp 85 % günstigeres Gewerbegrundstück. Als Antwort auf diese, national nicht unübliche Ambivalenz, entwickelten wir die Idee ein Bürogebäude zu entwerfen, welches mit wenigen Eingriffen auf Ausbauebene zu einer variablen Anzahl an Wohnungen umgebaut werden kann. Durch die strukturelle Transformation von der geschlossenen Wandscheibe im Norden hin zur offenen Stützenstruktur im Süden, konnte trotz der hohen statischen Anforderungen der Erdbebenzone, eine ressourceneffiziente, langlebige Tragstruktur geschaffen werden, welche maximale Flexibilität in der Nutzung und Zonierung ermöglicht.

Zurück